IMMOBILIE finden
Blog
Über uns
Vorstand
Verwaltung Graz
Verwaltung Wien
Fair mieten
Karriere
Service & Tools
Schadensmeldung
Formulare
FAQ
Kontakt
DE
EN
Vorstand
Verwaltung Graz
Vewaltung Wien
Fair mieten
Schadensmeldung
Formulare
← Menü
+43 316 83 23 39
office@grawewohnen.at
TikTok
Instagram
LinkedIn
Menü
Zurück
360° Ansicht
Obj. Nr.: 229-10
2-Zimmer-Erstbezug nach Sanierung mit Balkon - Provisionsfrei!
Jetzt anfragen
×
Teilen
E-Mail
WhatsApp
SMS
Facebook
Link kopieren
Link kopiert!
×
Anfrage
Object No.: 229-10
Anrede
Anrede*
Frau
Mann
Diverse
Unternehmen
Titel
Nachname
Vorname
Telefon
E-Mail
Subject
Nachricht
* Die mit einem Sternchen gekennzeichneten Felder sind Pflichtfelder.
Ich akzeptiere die
Datenschutzbestimmungen
(opens in new tab)
.
Submit Inquiry
→
Schörgelgasse 10, 8010 Graz
Bruttomiete
974,50 €
Fläche
76,73 m²
Zimmer
2
Benefits
Einbauküche
Klimaanlage
Badewanne
Kellerabteil
Balkon/Terrasse/Garten
WG-geeignet
Nahe Uni
Lift
WC extra
Fernwärme
Neubau
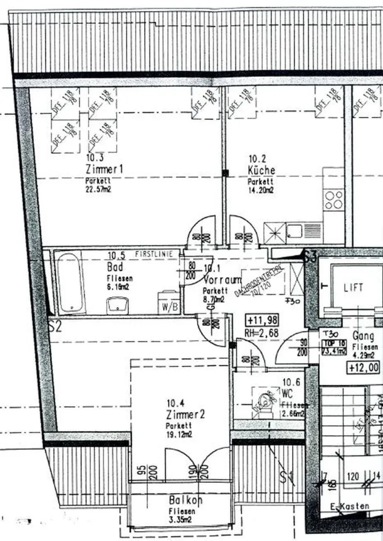
Diese zentral gelegene Wohnung besteht aus 2 geräumigen Schlafzimmern, einem Vorraum, einer Küche, einem Bad, einem WC und einem hübschen Balkon. In die Wohnung wurde auch eine Klimaanlage eingebaut.
360° View
Nettomiete
(exkl. MwSt.)
€ 670,00
Betriebskosten
(exkl. MwSt.)
€ 215,91
MwSt.
€ 88,59
Gesamtkosten
(inkl. MwSt.)
€ 974,50
Kaution
€ 3.000,00
Verfügbar
ab sofort
exklusive Strom- und Heizkosten
Provision
Nein
Baujahr
1999
Energiebedarf
Heizbedarf: 58.9 kWh/m²a
fGEE-Wert: 1.17
Jetzt anfragen
Fragen zu den Wohnungen?
wohnen@grawewohnen.at
+43 316 / 83 23 39
Ähnliche
Wohnungen
Nette Familienwohnung in Zentrumsnähe- Provisionsfrei!
Bruttomiete:
€ 816,48
Fläche
89,90 m²
→
Sanierte 2 Zimmer-Wohnung - Provisionsfrei!
Bruttomiete:
€ 591,86
Fläche
60,65 m²
→
Unser Blog
04.03.2026
Nachhaltigkeit bei GRAWEwohnen.at: Gemeinsam für eine grüne Zukunft
mehr lesen
→
22.01.2026
Gesetzliche Neuerungen für Wohnungsmieter*innen ab 2026
mehr lesen
→
mehr lesen→
Wohnungs
Newsletter
Bitte bestätige deine Anmeldung!
Bitte überprüfe deine Eingabe nochmals!
Name
E-Mail
Hiermit erkläre ich mich einverstanden, dass folgende Daten, nämlich meine E-Mail-Adresse und mein Name, von der GRAWE Immo AG, zum Zwecke der Zusendung von Newslettern über Neuigkeiten aus der Welt der GRAWE Immo AG, im Einklang mit der Datenschutzerklärung, verwendet werden. Diese Einwilligung ist freiwillig und kann jederzeit mit Wirkung für die Zukunft unter office@grawewohnen.at widerrufen werden.